0
Телефон
+7 903 896 03 16 9-20 ежедневно
Обратный звонок
Оставьте номер телефона и мы перезвоним в течении 30 минут.
Главный вид мини
Второй вид мини
Третий вид мини
Четвертый вид мини

Проект ДБ-105

Размеры проекта: 6х9
Площадь: 82 м 2
Количество комнат: 3
Этажность: 1 + мансарда
Кукушка Санузел
Цена:
1 000 000

Выберите материал стен: р.

Выберите тип фундамента:

По запросу
По запросу

Выберите тип кровли:

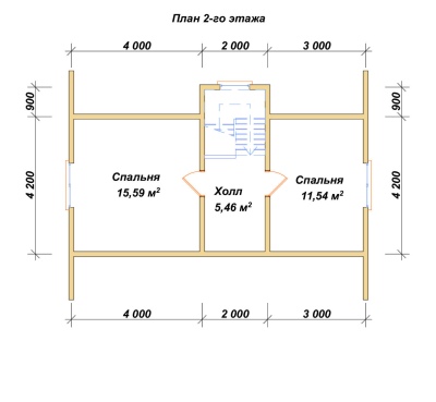
Планировки
Комплектация проекта
  • Дом из бруса естественной влажности (обычный брус – 19 венцов, профилированный брус – 21 венец);
  • Высота первого этажа – 2,70 м;
  • Высота мансардного этажа – 2,50 м;
  • Внутренние перегородки 1 этажа из бруса толщиной 100 мм, 2 этажа отсутствуют (по технологии устанавливаются после усадки дома и в стоимость не входят);
  • Балки половые и потолочные — брус 100х150 мм (шаг 600 мм);
  • Фронтоны крыши – доска 25х150 мм или имитация бруса (сухая) 16 х 140 мм;
  • Стропильная система – брус 50х150 мм (шаг 600 мм);
  • Обрешетка крыши — доска 25х150 мм;
  • Покрытие крыши – рубероид или гидроизоляционная пленка (по желанию заказчика);
  • Сборка стен сруба на деревянные – березовые нагеля (шканты);
  • Межвенцовый утеплитель – льноватин;
  • Рубка угловых соединений в «ласточкин хвост» (теплый угол);
  • Антисептическая обработка – 1 венца и половых лаг;
  • Бесплатная доставка, разгрузка и сборка на участке заказчика;
Отзывы
Фотографии работ
Как мы работаем
Консультация и выбор проекта

Выбор дома из каталога, или разработка индивидуального проекта. Выбор материалов и фундамента.

Заключение договора

Подписываем договор прямо на вашем участке. Оценим пути подъездаю. Фиксируем цену в договоре.

Подготовка материалов

1-2 недели в зависимости от сложности, размера и материалов дома.

Доставка и сборка

Доставка и разгрузка производится под личным контролем директора компании. Сборка дома в среднем занимает от 10 до 30 дней.

Усадка

Время усадки дома занимает 6-12 месяцев (естественный процесс древесины, пренебрегать им нельзя).

Отделка

Завершаем строительство дома под ключ: установка окон, дверей, инженерных систем и т.д.

Технологии
Доставка
Этапы
                работ компании
Другие проекты
Габариты: 8х9
Общая площадь: 62 м²
По запросу
Габариты: 7х9
Общая площадь: 134 м²
По запросу
Габариты: 7х8
Общая площадь: 92 м²
По запросу
Габариты: 6х7
Общая площадь: 70 м²
По запросу
Габариты: 7х9
Общая площадь: 42 м²
По запросу
Габариты: 8х9
Общая площадь: 103 м²
По запросу
Наши объекты на карте

Есть вопросы ?

Позвоните нам или оставьте заявку
и мы проконсультируем вас по любому вопросу

+7 903 896 03 16 Почта: info@lider-brus.ru

Напишите нам

Обязательно ответим на все вопросы

Нажимая кнопку "Отправить", я даю согласие на обработку своих персональных данных.

Cookie файлы

На нашем сайте используются cookie–файлы, в том числе сервисов веб–аналитики. Используя сайт, вы соглашаетесь на обработку персональных данных при помощи cookie–файлов. Подробнее об обработке персональных данных вы можете узнать в Политике конфиденциальности.